6441 Elevation RoadBenson, NC 27504
Due to the health concerns created by Coronavirus we are offering personal 1-1 online video walkthough tours where possible.




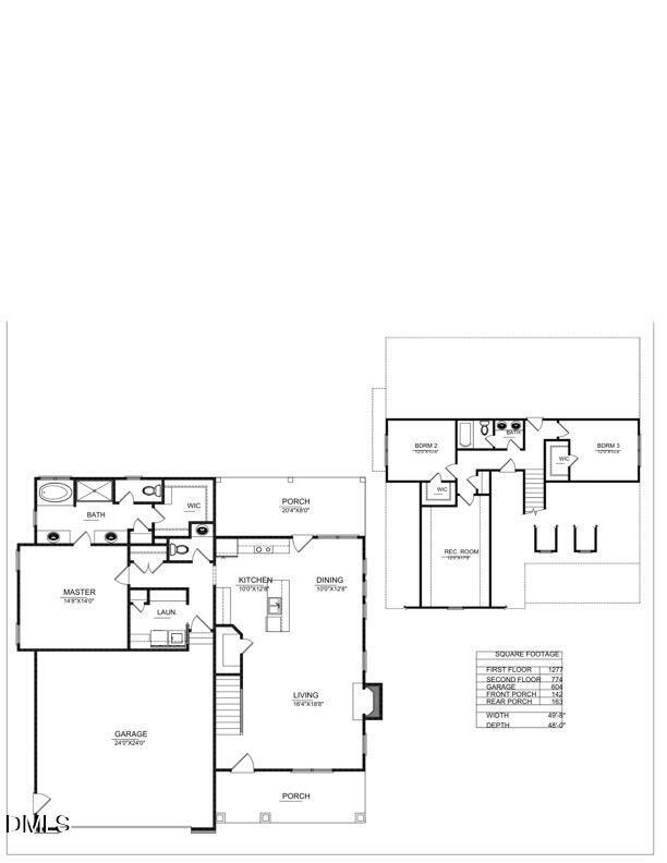
Welcome to 6441 Elevation Rd! This new construction home offers over 2,000 sq ft of living space on just over an acre, giving you the perfect blend of peaceful country living with convenient access to amenities. Enjoy a quiet setting while being just minutes from I-40, with easy access to Raleigh and Fort Bragg. The home also features walk-in storage, adding valuable space and functionality. Spacious, modern, and thoughtfully designed. This home is a rare find with room to breathe and a location that keeps you connected! *Photos For Comparative Purposes Only*
| 12 hours ago | Listing updated with changes from the MLS® | |
| 2 months ago | Listing first seen on site |
Listings that are marked with an icon are provided courtesy of the Triangle MLS, Inc. of North Carolina, Internet Data Exchange Database. Copyright 2026 Triangle MLS, Inc. of North Carolina. All rights reserved.
Last checked: 2026-03-17 06:35 AM UTC
